コレクション長居公園

12,000万円

大阪府大阪市住吉区南住吉3丁目

阪和線「我孫子町」駅徒歩10分

南海高野線「沢ノ町」駅徒歩10分

地下鉄御堂筋線「長居」駅徒歩13分

価格
12,000万円
建物面積(坪数)
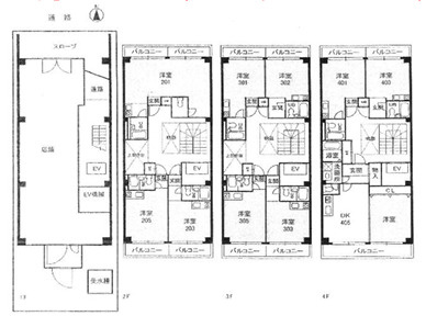
328.72㎡(99.43坪)
所在階 / 総戸数
-/11戸
所在地
大阪府大阪市住吉区南住吉3丁目
交通

阪和線我孫子町」駅 徒歩10分

南海高野線沢ノ町」駅 徒歩10分

地下鉄御堂筋線長居」駅 徒歩13分

利回り
想定6.40%
土地面積(坪数)
165.32㎡(50.00坪)
築年月
1990年7月(築35年)

物件の特徴

  • エレベーター

基本情報

価格
1億2,000万円
利回り
想定6.40%
建物面積(坪数)
328.72㎡(99.43坪)
土地面積(坪数)
165.32㎡(50.00坪)
その他面積
-
-
-
土地権利
所有権
国土法届出要否
不要
地目 / 地勢
宅地 / 平坦
都市計画
市街化区域
用途地域
第二種中高層住居専用
建物構造 / 総戸数
鉄骨造 / 11戸
建ぺい率 /
容積率
60%/200%
築年月
1990年7月(築35年)
接道状況
一方(北 公道 11.0m)
その他
法令上の制限
調査中
取引態様
仲介
現況
賃貸中
引渡し
2025年10月上旬
管理会社 /
管理組合有無
- / -
取引条件の
有効期限
2026年04月20日

設備条件

設備条件
  • 都市ガス / 公営水道 / 公共下水 / エレベーター / 電気有 / 駐輪場
設備(その他)
    -

その他

物件番号
96979220
管理コード
-
情報更新日
2026年04月06日
次回更新予定日
2026年04月20日
取扱会社
  • 株式会社JPキャピタル
  • 東京都千代田区神田錦町1丁目4-8 ブロケードビル 3階
  • TEL:03-6811-0500
  • 東京都知事 (2) 第102967号
  • 公益社団法人 全日本不動産協会 
    公益社団法人 不動産保証協会
    公益財団法人 東日本不動産流通機構

支払いシミュレーション

月々の支払額

※実際の金額と異なる場合があります。

購入希望物件価格
万円
頭金
万円
金利
%
返済額(ボーナス1回分)
万円
返済期間

※ボーナスは自動で年2回分で計算されます。

想定賃料・利回り・PER

PER(収益力)

※実際と異なる場合があります。

想定賃料(1ヵ月)
万円
利回り
%

近隣の物件

  1. メリーゴーランドオリオノ

    大阪市住吉区遠里小野5丁目

    1R (228.00㎡)

    6,580万円

よく見られている物件

  1. 桜島ビューハイツ

    鹿児島市唐湊2丁目

    - (518.40㎡)

    5,500万円

  2. つたやマンション本町

    郡山市本町1丁目

    - (2310.54㎡)

    19,800万円

  3. レヴァンテ宝塚

    西宮市生瀬東町

    1K (129.21㎡)

    8,600万円

  4. 千葉市中央区汐見丘町の一棟マンション

    千葉市中央区汐見丘町

    2DK (882.16㎡)

    26,800万円

コレクション長居公園

コレクション長居公園

12,000万円

-

1R(328.72㎡)

お気軽にお問い合わせください

無料お問い合わせ

株式会社JPキャピタル

03-6811-0500

10:00~19:00

(休:土日祝祭日)