O2レジデンス竹ノ塚 B棟

1億3,600万円

東京都足立区東伊興3丁目

東武伊勢崎線「竹ノ塚」駅徒歩11分

東武伊勢崎線「谷塚」駅徒歩22分

日暮里舎人ライナー「舎人」駅徒歩25分

価格
1億3,600万円
間取り/面積
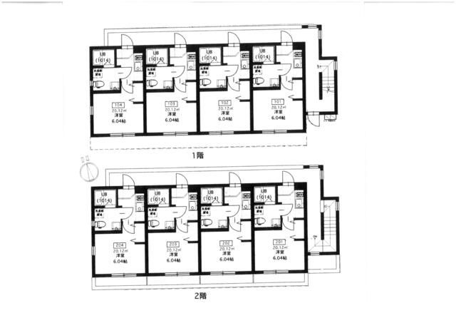
1K/180.74㎡
所在地
東京都足立区東伊興3丁目
築年
2023年5月(築2年)
駐車
交通

東武伊勢崎線竹ノ塚」駅 徒歩11分

東武伊勢崎線谷塚」駅 徒歩22分

日暮里舎人ライナー舎人」駅 徒歩25分

O2レジデンス竹ノ塚 B棟の基本情報

物件名
O2レジデンス竹ノ塚 B棟
価格
1億3,600万円
建物面積
180.74㎡
築年月
2023年5月(築2年)
総戸数
8戸
所在地
東京都足立区東伊興3丁目
交通

東武伊勢崎線竹ノ塚」駅 徒歩11分

東武伊勢崎線谷塚」駅 徒歩22分

日暮里舎人ライナー舎人」駅 徒歩25分

O2レジデンス竹ノ塚 B棟の詳細情報

設備条件
  • 駐輪場
  • CATV
  • オートロック
  • 宅配ボックス
設備(その他)
    -
駐車場/月額
無/-
土地権利
所有権
国土法届出
不要
用途地域
準住居
戸数
8戸 / 8戸
管理形態
-
管理員の勤務形態
-
管理会社
-
取引態様
仲介
引渡し
相談

O2レジデンス竹ノ塚 B棟で募集中の物件

  1. 64.67坪 (180.74㎡)

    13,600万円(210.3万円/坪)

O2レジデンス竹ノ塚 B棟

お気軽にお問い合わせください

無料お問い合わせ

株式会社JPキャピタル

03-6811-0500

10:00~19:00

(休:土日祝祭日)